How to Use the Polycam Floorplan Editor (Beta)

The Polycam floorplan editor lets you modify and furnish floorplans captured using Space Mode (with floorplan mode enabled) or Floorplan capture mode.

Plan Availability

Currently, the Floorplan Editor is only available to a closed group of beta testers.

iOS Web Android
Free
Basic
ProLEGACY
Business
Enterprise

Getting Started

Before you can use the floorplan editor, you'll need to capture a space using one of Polycam's capture modes:

  • Space Mode (LiDAR-based with floorplan mode enabled): Captures both 3D spatial data and generates a floorplan.
  • Floorplan Mode: Specifically designed for creating floor plans of your space

Once your capture is processed, go to the floorplan tool, where you'll see an option to edit the generated floorplan. In the editor, you'll be able to edit walls, windows, doors, and objects to perfect your layout. Once saved, your edits will automatically be reflected in both the 3D floorplan and Spatial Report.

Keyboard Shortcuts

The Floorplan Editor supports keyboard shortcuts to speed up your workflow:

  • Cmd/Ctrl+Z: Undo
  • Cmd/Ctrl+Shift+Z or Cmd/Ctrl+Y: Redo
  • Cmd/Ctrl+X: Cut (furniture only)
  • Cmd/Ctrl+C: Copy (furniture only)
  • Cmd/Ctrl+V: Paste (furniture only)

Try the Interactive Demo

Get hands-on experience with the Floorplan Editor before diving into detailed instructions. This interactive demo lets you practice modifying walls, adding furniture, and arranging layouts.

Editing Your Captured Floorplan

Before using the Floorplan Editor, you'll need to capture a space using Polycam's Space Mode (with floorplan mode enabled) or Floorplan capture mode. Once captured, the Floorplan Editor allows you to refine walls and prepare the space for furnishing.

1Add Room Labels

Identify and label rooms in your floorplan to create a clear, professional layout. Room labels help viewers quickly understand the purpose of each space.

To add room labels:

  • Select the room you want to label
  • Choose the appropriate room name from the available options (Kitchen, Bedroom, Living Room, Bathroom, etc.)
  • The label will appear in your floorplan, making it easier to identify spaces

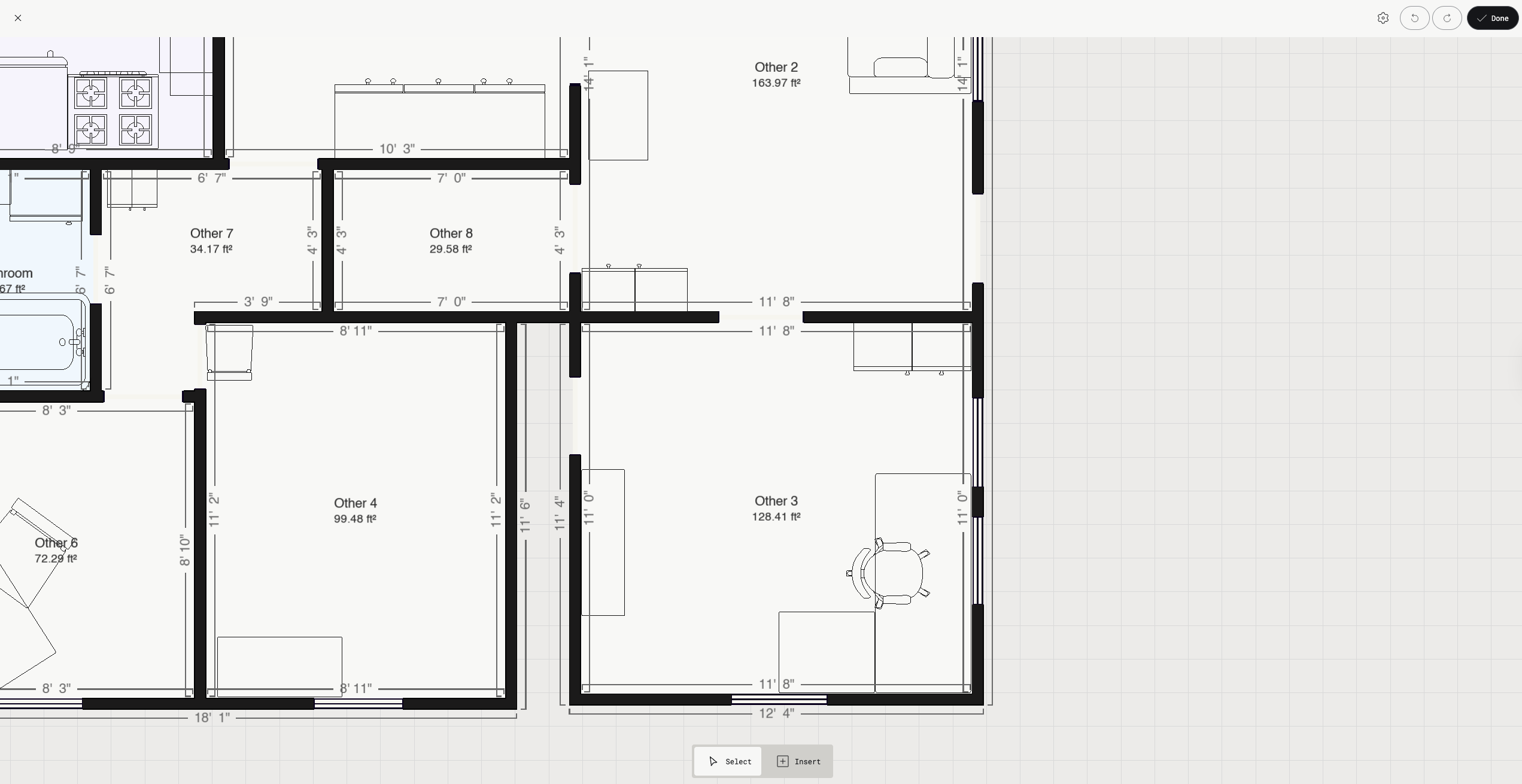
2Modify Walls

The Floorplan Editor lets you refine walls from your captured space. When you select a wall, the properties panel displays customizable settings:

  • Thickness: Adjust to match actual wall dimensions (typically 4-6 inches for interior walls, 6-12 inches for exterior walls).
Tip: Modifying individual wall thickness is not currently supported. Changing the wall thickness will affect all walls in your floorplan.

To modify existing walls:

  • Straighten Curved Walls: Select a curved wall and select "Straighten" from the properties panel. At this time, we only support editing the length of the straight wall.
  • Move: Click on the selected wall and drag it to adjust positioning
  • Resize: To edit wall length, select its associated dimension label and edit the measurement value in the properties panel. Alternatively, you can also drag the wall or its endpoint.
  • Delete: Select the wall and either click the Delete button in the properties panel or press the Delete key on your keyboard
Demonstration of straightening curved walls and adjusting wall positions

3Insert New Walls

Sometimes your captured floorplan may be missing walls that weren't detected during the scan, or you may need to add partition walls to divide spaces. The Floorplan Editor allows you to draw new walls from scratch using the Add wall button.

To insert a single wall:

  • Click the Add wall button in the toolbar
  • Click on the floorplan to place the starting point of your wall
  • Click again to place the endpoint and complete the wall

To create a complete room:

  • Click the Add wall button
  • Click to place the first wall's starting point, then click again to place its endpoint
  • Click the Add wall button again to add the next wall
  • Continue this process, connecting walls to form the room's perimeter
  • Connect the final wall to your starting point to close the room

Once inserted, new walls behave just like captured walls—you can adjust their thickness, length, and position using the same techniques described in the "Modify Walls" section above.

4Modify Existing Furniture

If your captured floorplan already includes furniture detected during capture, you can refine it:

  • Move: Click and drag furniture to reposition it within the space
  • Resize: Adjust dimensions to match actual furniture sizes
  • Rotate: Use rotation handles to change orientation
  • Replace: Swap detected furniture with specific assets from the Asset Library. To replace, select the furniture item, open the Asset Library, choose a new item, and it will replace the selected piece.
  • Delete: Remove furniture by selecting it and pressing the Delete key or clicking the red trash icon in the properties panel
Tip: When furniture is replaced, it will retain the original dimensions that were scanned.

5Manage Doors, Windows, and Openings

You have full control over openings in your captured walls. You can add new doors and windows, or modify existing ones from the Asset Library.

To add doors or windows:

  • Click Insert to open the Asset Library
  • Navigate to the "Doors" or "Window" category
  • Select the style you need
  • Click Add to floorplan
  • Select a wall to nest the opening in
Note on window placement: Windows can only be added if they appear in the floorplan view. Floorplans show your space as if you're looking down from above, cutting through the walls at about 4 feet from the floor. You can add standard windows that start at or below 4 feet high. However, windows that are positioned entirely above this height (like small basement windows near the ceiling) won't appear in the floorplan. To see and document these higher windows, you will need to review the detailed mesh instead.

To modify existing doors, windows, or openings:

  • Move: Click on the selected door or window and drag it to a new position along the wall
  • Resize: Adjust the width of openings to match actual dimensions
  • Replace: Swap one door or window style with another from the Asset Library. Select the opening, open the Asset Library, choose a new style (such as switching between open or generic door types), and it will replace the selected opening.
  • Delete: Select the opening and either click the red trash icon in the properties panel, or use the Delete key on your keyboard
Demonstration of adding, moving, and modifying doors and windows
Door and Window Tips:
  • Standard interior door openings are 32-36 inches wide
  • Consider furniture placement near doorways for proper clearance
  • Bathroom doors are typically positioned for privacy

6Save Your Changes

To make your edits persistent across all your devices, you need to save your changes:

  • Click the Save button in the editor
  • Your changes will sync across all devices
  • Without saving, edits made on one device won't appear on other devices

Adding Furniture to Your Floorplan

1Browse the Asset Library

Use the Insert function to access the Asset Library and add additional furniture to your captured floorplan. The library currently contains 70+ assets organized by category and is rapidly growing.

Available Categories:

  • Bathroom: Toilets, sinks, tubs, showers, vanities
  • Bedroom/Living: Beds, sofas, chairs, tables, dressers
  • Kitchen: Appliances, cabinets, islands, ranges
  • Office: Desks, chairs, filing cabinets, conference tables
  • Laundry: Washers, dryers, utility sinks
  • Lighting: Ceiling fixtures, floor lamps, sconces
  • Mechanical/Plumbing: HVAC units, water heaters, piping
  • Life Safety: Fire extinguishers, exit signs, smoke detectors
  • Plants: Interior plantings and greenery
  • Storage: Shelving units, closet systems, cabinets
Tip: Use the search bar at the top of the Asset Library to quickly find specific items. Type "dining table" or "bed" to filter results.

2Insert and Arrange Furniture

To add new furniture assets to your floorplan:

  • Browse categories or search for specific items
  • Click on an asset to select it
  • Click Add to floorplan
  • Drag the asset to position it in your layout

Once placed, you can adjust any furniture (both newly added and existing):

  • Move: Click and drag to reposition
  • Rotate: Use rotation handles to change orientation
  • Resize: Adjust dimensions to match actual furniture sizes
  • Replace: Swap furniture with different assets from the library
Demonstration of inserting and arranging furniture in the floorplan

See How Your Edits Affect the 3D Render

As you refine walls and add furniture in the 2D editor, you can save and switch to the 3D view to see how your space is taking shape. This helps you check that your layout works in both plan and perspective views.

Before: 3D view of the captured space
Before (3D View): Original captured space.
Before: 2D floorplan editor
Before (2D Editor): Floorplan with room labels and measurements.
After: 2D floorplan editor with furniture
After (2D Editor): Furniture assets added in the editor.
After: 3D view with furniture
After (3D View): 3D view automatically updated with added furniture.

Editing Workflow Best Practices

Here's how to get the most out of the Floorplan Editor:

1Capture Your Space

Use Polycam's Space Mode (with floorplan mode enabled) or Floorplan capture mode to scan your space. This creates the initial floorplan that you'll refine in the editor.

2Clean Up Walls

Start by refining the captured walls—straighten any curves, adjust positioning, and correct wall thicknesses. Clean walls make furniture placement easier and create a more professional result.

3Refine Existing Furniture

If furniture was detected during capture, adjust its position, dimensions, and orientation. Replace generic detected furniture with specific assets from the library for accurate representation.

4Add Additional Furniture

Use the Insert function to add furniture that wasn't captured or detected. Start with major pieces (beds, sofas, dining tables) before adding smaller supporting elements.

5Fine-Tune and Save

Review your layout for proper spacing and functionality. Once satisfied, click Done to save your changes. This will also automatically update your 3D floorplan and spatial report.